26
$2,350 Rent
Listed 17 hours ago
7042 SUMMER HOLLY PL
· 3
· 2.50
· -
· 1374
Key Facts
Key facts for 7042 SUMMER HOLLY PL
Property Type
Townhome
Parking
1 garage
MLS #
TB8435235
Size
1374 sqft
Basement
-
Listed on
-
Lot size
-
Tax
-
Days on Market
-
Year Built
2018
Maintenance Fee
-
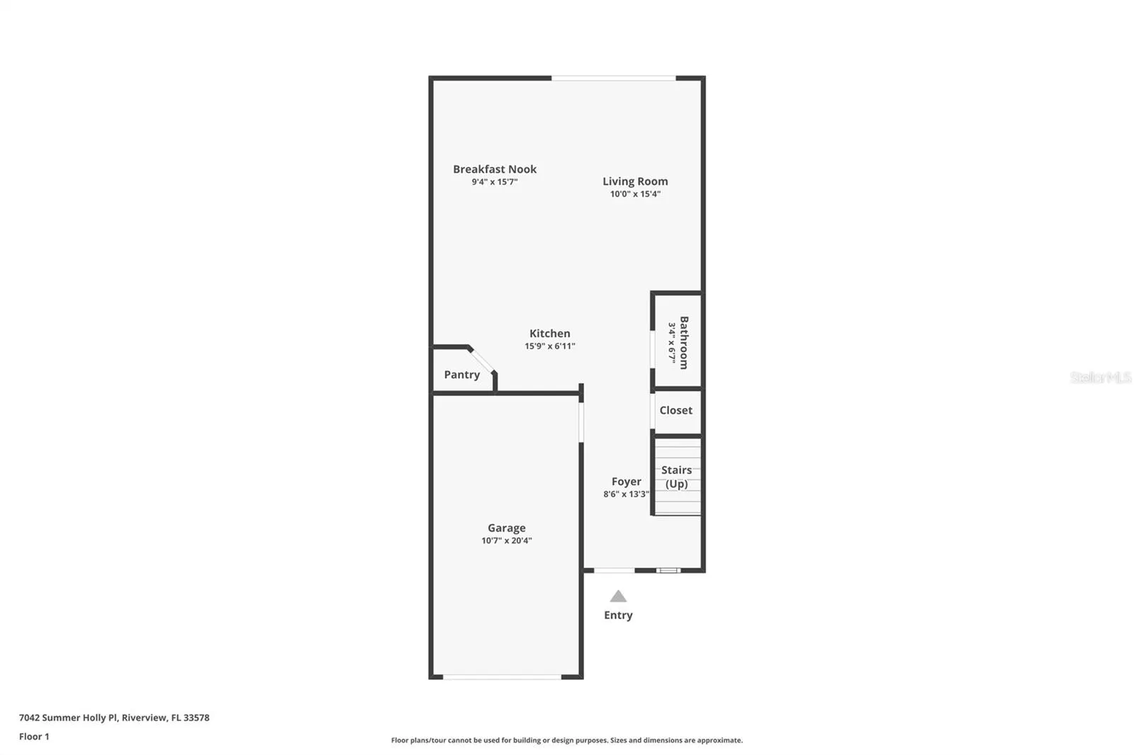
Description
Beautiful 3-Bedroom Townhome in Riverview’s Oak Creek Community. Welcome to this spacious 3-bedroom, 2.5-bathroom townhome offering 1,374 sq. ft. of comfortable living in the sought-after Oak Creek community. The open-concept first floor features a bright living and dining area, a well-equipped k...itchen with ample storage, and a convenient half bath. Upstairs, you’ll find a generous primary suite with a private bath and walk-in closet, along with two additional bedrooms and a full bathroom. Located in the heart of Riverview, this home offers easy access to US-301, I-75, and the Crosstown Expressway, making commutes to downtown Tampa, Brandon, and MacDill AFB simple. Nearby shopping, dining, schools, and entertainment add to the convenience of this desirable community. If you decide to apply for one of our properties: Screening includes credit/background check, income verification of 2.5 to 3 times the monthly rent and rental history verification. We encourage applicants with credit scores above 600 to apply, as meeting this criteria will help streamline the application process. APPLICANT CHARGES: Application Fees: $75 each adult, 18 years of age and older (non-refundable). $25 each pet application fee for pet verification (non-refundable). Current vaccination records will be required. ESA and service animals are FREE with verified documentation. Lease Initiation Admin Fee: $150.00 after approval and upon signing. Security Deposit: Equal to one month’s rent. Pet Fee if applicable (non-refundable) $350 each pet. All Rent Solutions residents are enrolled in the Resident Benefits Package (RBP) for $49.95/month which includes liability insurance, credit building to help boost the resident’s credit score with timely rent payments, HVAC air filter delivery (for applicable properties), our best-in-class resident rewards program, and much more! More details upon application.
Similar Properties (No results)
Listing courtesy of: RENT SOLUTIONS, 813-579-5597

Listings courtesy of Stellar MLS as distributed by MLS GRID.