27
$310,000 Sale
Listed 20 hours ago
7548 117TH
· 2
· 1
· 2
· 875
Key Facts
Key facts for 7548 117TH
Property Type
House
Parking
Garage Door Opener 2 garage
MLS #
TB8426017
Size
875 sqft
Basement
-
Listed on
-
Lot size
-
Tax
$760.36 /yr
Days on Market
-
Year Built
1961
Maintenance Fee
-
Description
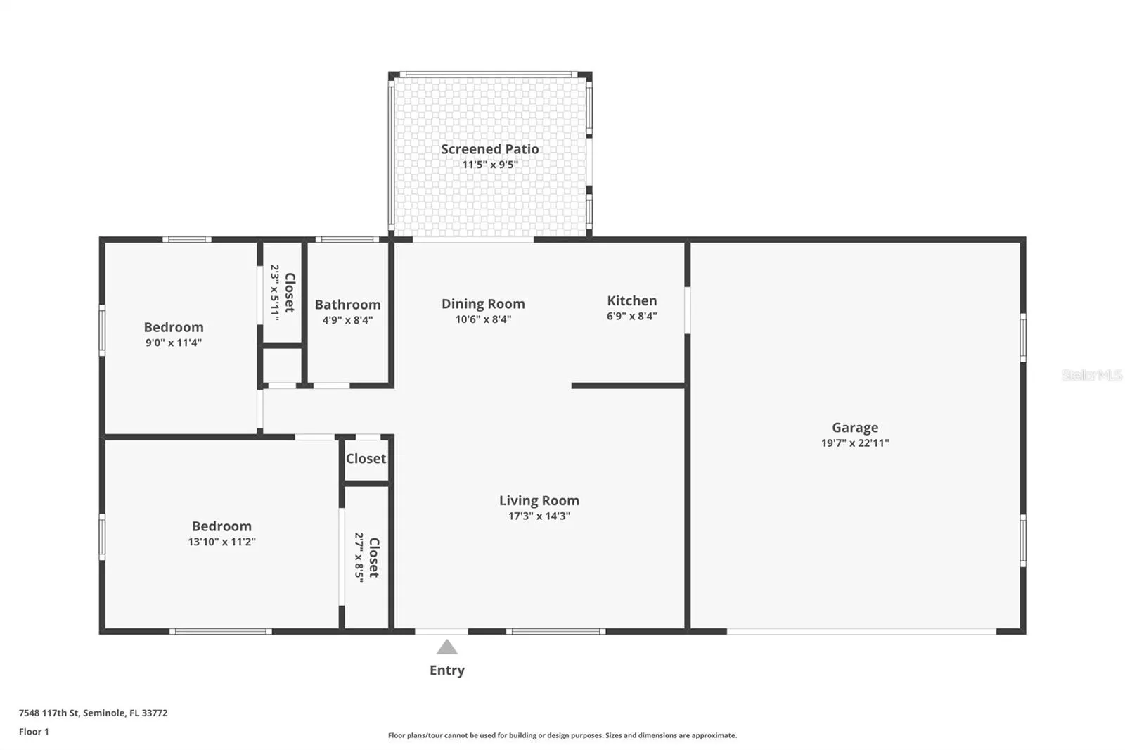
One or more photo(s) has been virtually staged. Welcome to this beautifully maintained 2-bedroom, 1-bath home nestled in the heart of Seminole! With 875 sq ft of well-designed living space, this home offers both comfort and convenience in one of Pinellas County's most desirable areas. Step inside... to find a thoughtfully updated kitchen featuring solid wood cabinets, ample storage, and a filtered water system for fresh, clean drinking water right at your fingertips. The home is equipped with impact windows and a sliding glass door, ensuring energy efficiency and peace of mind. A brand new roof (2025) adds even more value and longevity. Outside, you'll love the low-maintenance xeriscaped front lawn, designed in a Florida-native style that enhances curb appeal while conserving water — perfect for those who want beauty without the upkeep. The oversized 2-car garage offers excellent storage options, while the spacious backyard is ideal for outdoor activities, gardening, or future expansion. A screened-in back patio provides the perfect spot for morning coffee, evening relaxation, or bug-free gatherings year-round. Best of all, the backyard provides direct gated access to the Pinellas County Trail—perfect for biking, walking, or jogging right from your property. Enjoy the unbeatable location: just a short walk to Seminole City Park, a 5-minute drive to Seminole City Center, and less than 10 minutes to the gorgeous Pinellas County beaches. Whether you're a first-time homebuyer, downsizer, or looking for a vacation property, this Seminole gem combines style, convenience, and quality living. Don’t miss your chance to own a slice of Florida paradise!
Similar Properties (No results)
Listing courtesy of: DALTON WADE INC, 888-668-8283

Listings courtesy of Stellar MLS as distributed by MLS GRID.