51
$410,000 Sale
Listed 19 hours ago
1323 STATELY OAKS DR NW
· 2
· 3
· -
· 1354
Key Facts
Key facts for 1323 STATELY OAKS DR NW
Property Type
House
Parking
-
MLS #
P4936627
Size
1354 sqft
Basement
-
Listed on
-
Lot size
-
Tax
$575.19 /yr
Days on Market
-
Year Built
1925
Maintenance Fee
-
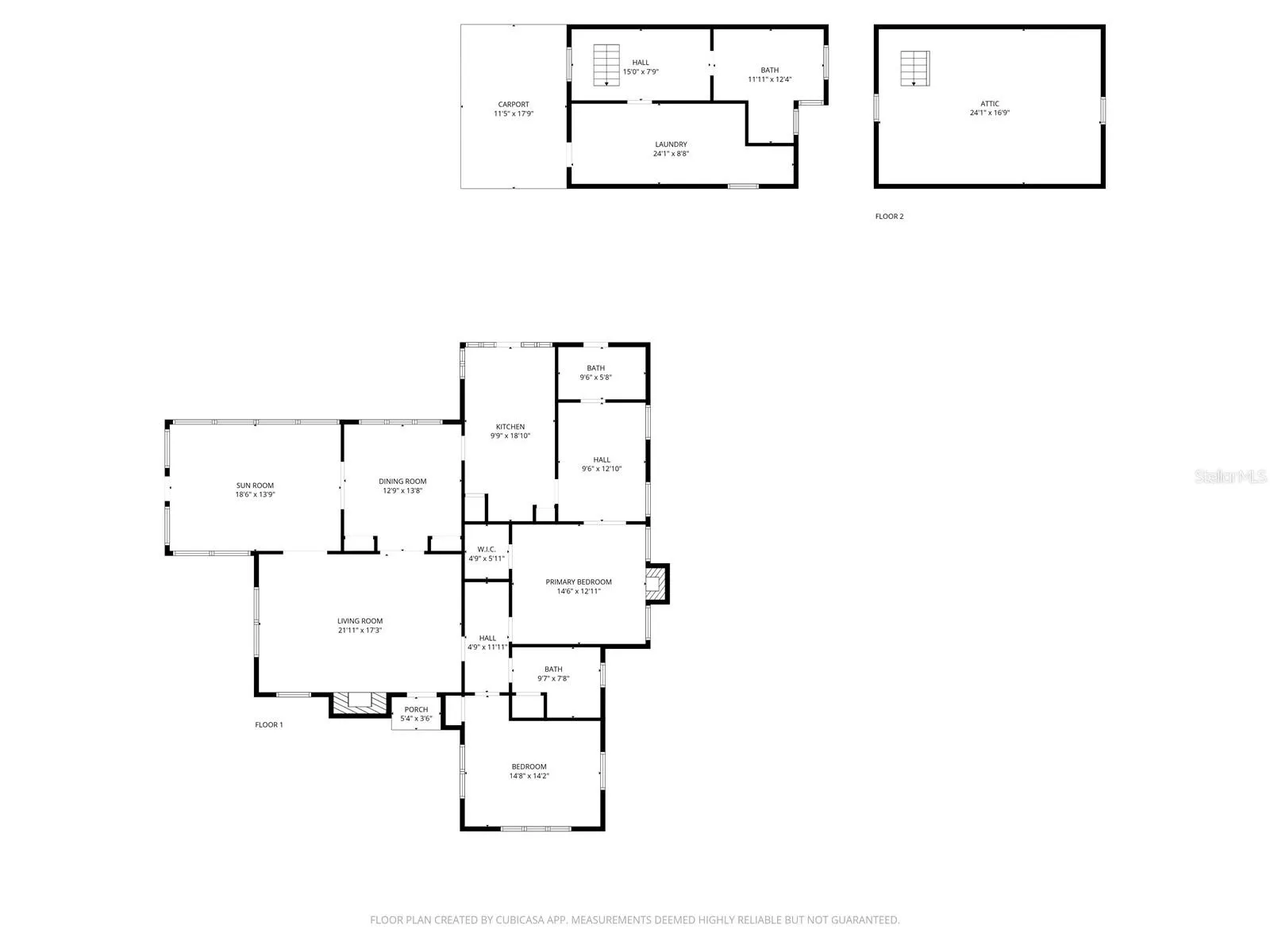
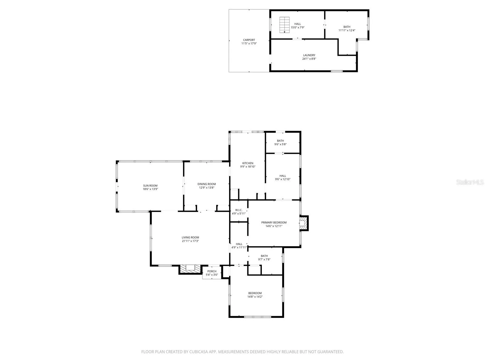
Description
Built in 1925 this residence blends historic architecture with modern updates, creating a rare offering in the heart of Winter Haven. Curb appeal is undeniable with a textured stucco exterior, tiled walkways surrounding your very own fish pond and lush landscaping. Upon entry the formal living roo...m greets you with a brick fireplace, wood flooring and cathedral ceilings with open beams. This home offers 2 bedrooms and 2 bath, living room, dining room, sun/family room and wood flooring throughout. Fireplace in Primary bedroom and a bonus room attached leading to the master bath. Property appraiser SF does not include detached 800 Sf studio with full bath could easily be converted to an in law apartment, 3rd bedroom or office/workshop. A covered two car carport is located around the back of the home. The outdoor areas are just as appealing with a rear patio overlooking a private backyard ideal for entertaining, gardening or relaxing. Roof is 2022. Conveniently located minutes from downtown Winter Haven, shopping, dining, schools and medical facilities and with easy access to the Polk Parkway for commutes to Lakeland, Tampa or Orlando.. The property also offers quick access to boat ramps on the Chain of Lakes for fishing, boating, and waterfront dining. This home is a rate opportunity for those who appreciate historic homes.
Similar Properties (No results)
Listing courtesy of: KELLER WILLIAMS REALTY SMART 1, 863-508-3000

Listings courtesy of Stellar MLS as distributed by MLS GRID.