80
$499,900 Sale
Listed 1 day
13347 GOLF POINTE DR
· 2
· 2
· 2
· 1829
Key Facts
Key facts for 13347 GOLF POINTE DR
Property Type
House
Parking
Driveway,Garage Door Opener,Off Street,Workshop in Garage 2 garage
MLS #
D6143863
Size
1829 sqft
Basement
-
Listed on
-
Lot size
-
Tax
$8,123.83 /yr
Days on Market
-
Year Built
2003
Maintenance Fee
$308.93/mo
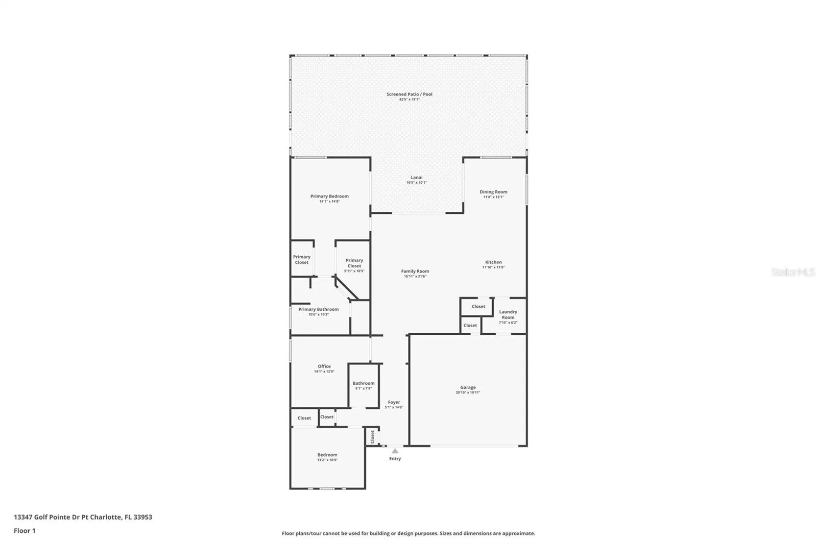
Description
Experience the Florida dream by owning this beautifully designed and well-appointed IBIS Great Room Plan. This popular open-concept home features two bedrooms, two bathrooms and a versatile den. Also, a desirable southeast-facing view of a scenic pond, creating a tranquil backdrop for everyday livin...g. The expansive outdoor lanai offers a heated pool with a waterfall feature, providing the perfect setting to relax and soak in the natural beauty and endless sunny skies. Architectural highlights include a grand glass front door, elegant front hallway archways, soaring volume ceilings, 8-foot doors and crown molding. Luminette window treatments adorn the glass sliders, while premium tile flooring extends throughout the great room, kitchen and dining areas. The spacious kitchen is designed for both style and functionality, featuring a large island with granite countertops, a custom tile backsplash, and a custom-designed pantry. Every window is dressed with custom window treatments, adding a refined touch to the home's elegant ambiance. The primary bedroom is a luxurious retreat with a tray ceiling, an oversized California walk-in closet and a spa-like primary bath with a jetted soaking tub. Designer lighting and window treatments enhance the beauty of every room. Additional features include storm accordion shutters, custom garage cabinets with a built-in workbench, and a premium waterfront lot with mature landscaping. As an added bonus, a turnkey-quality furniture package is available for purchase separately—ask the agent for details. Nestled along the Myakka River, residents enjoy the unparalleled charm of the Riverwood Community, situated in the heart of Port Charlotte, Florida. Riverwood offers a plethora of world-class amenities. Enjoy the award-winning Riverwood Golf Club. Our par 72 championship course, designed by Gene Bates, offers a unique experience for all skill levels. For those who love to stay active, our Activity Center Campus features lap & resort-style pools, a state-of-the-art fitness center, pickleball & tennis courts, lawn croquet, bocce courts, even small & large dog parks. Art enthusiasts will appreciate our dedicated art classroom. Riverwood is an Audubon Green community that values nature & conservation with over 300 acres of preserves, wetlands, ponds, & lakes. From our private beach club on Manasota Key to on-site RV/boat storage, we have the amenities to enhance your lifestyle. Located close to the Gulf Beaches, Charlotte Harbor, Myakka River, Punta Gorda, Englewood, Venice, & Boca Grande, Riverwood offers easy access to a variety of recreational & cultural activities. Riverwood Community provides a perfect blend of Florida’s natural beauty & resort-style living. Call us today to schedule your private tour & see for yourself why Riverwood Community is the ideal place to live, play, & thrive.
Similar Properties (No results)
Listing courtesy of: RIVERWOOD REALTY, 941-743-9663

Listings courtesy of Stellar MLS as distributed by MLS GRID.