16
$2,960 Rent
Listed 8 hours ago
· 3
· 2
· 1
· 1293
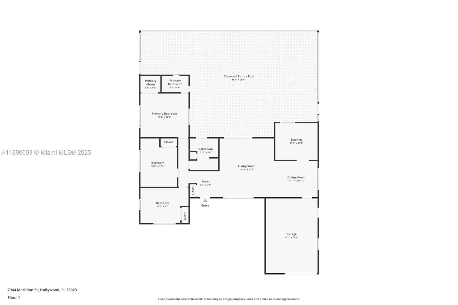
Key Facts
Key facts for
Property Type
House, Unspecified
Parking
1 garage
MLS #
A11890603
Size
1293 sqft
Basement
-
Listed on
-
Lot size
-
Tax
-
Days on Market
-
Year Built
1961
Maintenance Fee
-
Description
Welcome to the house you can make your home. All this place needs is a dose of your personality. Now you'll have the space to comfortably host family and friends. Let your friends into this accommodating kitchen and recreate gourmet meals from your Instagram. Guests are sure to compliment the sleek ...countertops, coordinating appliances and graceful finishes. With this fenced backyard, you'll get private outdoor space perfect for lounging. The space is complete with a pool. Don't wait, apply online today!
Listing courtesy of: Invitation Homes