64
$399,000 Sale
Listed 21 hours ago
2510 Brownwood Dr
· 4
· 2.50
· 2
· 3314
Key Facts
Key facts for 2510 Brownwood Dr
Property Type
House, Detached,Two-Story
Parking
2 garage, Attached,Garage,Other
MLS #
A11885759
Size
3314 sqft
Basement
-
Listed on
-
Lot size
-
Tax
$5,354 /yr
Days on Market
-
Year Built
2005
Maintenance Fee
$12.50/mo
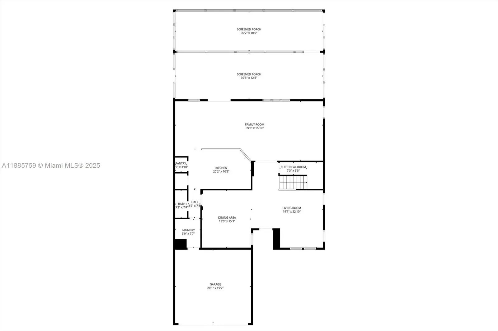
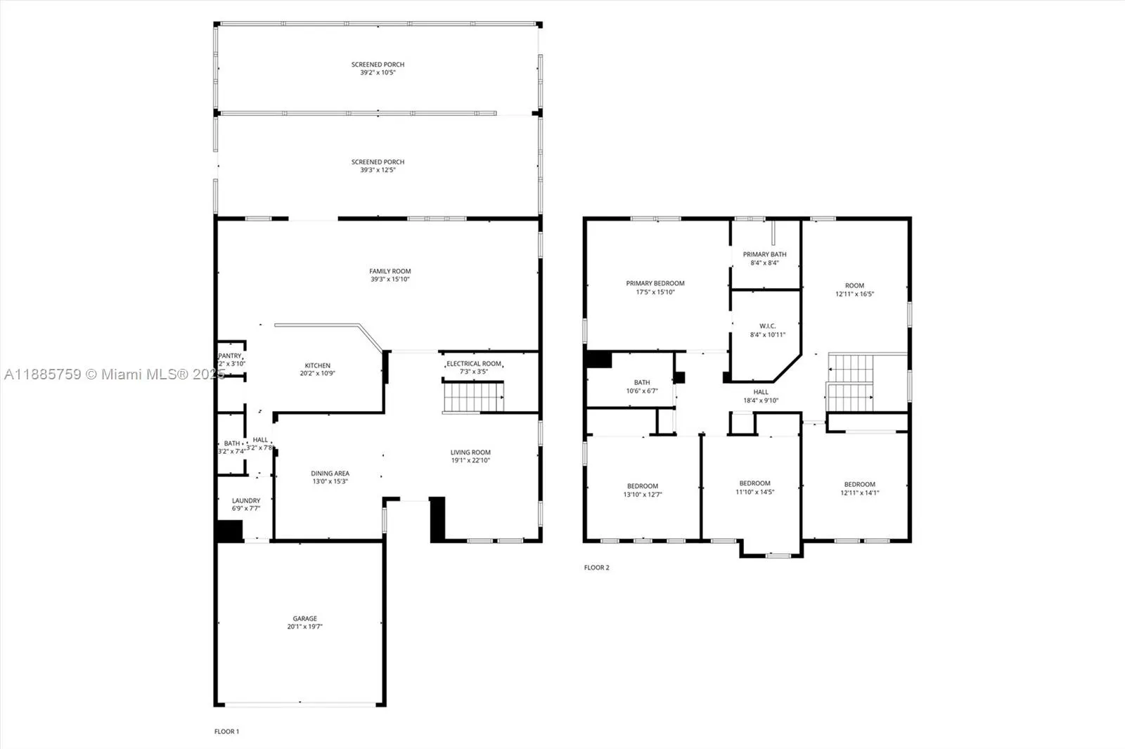
Description
Welcome to the beautiful Preserve at Sundance community in Mulberry, Florida! This stunning two-story home offers over 3,100 sq. ft. of thoughtfully designed living space. The open floor plan is filled with natural light, creating a bright, inviting atmosphere. The spacious eat-in kitchen features g...ranite countertops, stainless steel appliances, and two pantries. Upstairs includes three bedrooms, highlighted by a serene primary suite with a walk-in closet and soaking tub. Enjoy the screened-in porch overlooking a private, fenced backyard—perfect for relaxing or entertaining. With a two-car garage, formal dining and living rooms, and proximity to parks, shops, and schools, this move-in-ready home is a must-see!
Similar Properties (No results)
Listing courtesy of: LPT Realty, LLC