54
$335,000 Sale
Listed 70 days ago
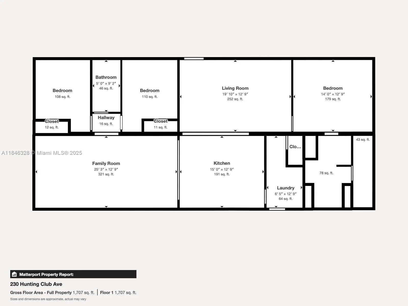
230 Hunting Club Ave
· 3
· 2
· -
· 1600
Key Facts
Key facts for 230 Hunting Club Ave
Property Type
Manufactured, Detached,Manufactured Home,One Story
Parking
0 garage, Driveway,ParkingPad
MLS #
A11846328
Size
1600 sqft
Basement
-
Listed on
-
Lot size
-
Tax
$1,108 /yr
Days on Market
-
Year Built
2024
Maintenance Fee
-
Description
Step into a world of contemporary comfort and style. This beautifully designed 3-bedroom haven boasts an open-concept living space that seamlessly blends form and function. The heart of the home is a stunning gourmet kitchen, featuring sleek cabinetry, high-end appliances, and a chic breakfast bar -... perfect for culinary adventures and casual dining. Sunlight streams through large windows, illuminating the carefully curated interiors and creating an inviting ambiance. The spacious primary bedroom offers a tranquil retreat, while two additional bedrooms provide versatile space for family or guests. Complete with a glass-enclosed shower and elegant finishes. This home isn't just a place to live; it's a canvas for your aspirations and the backdrop for countless memories waiting to be made.
Similar Properties (No results)
Listing courtesy of: Sunlife Realtors